STUDY AND DESIGN OF RECORDING STUDIOS
Create exceptional studios where every detail is studied to ensure the highest quality listening and recording experience.
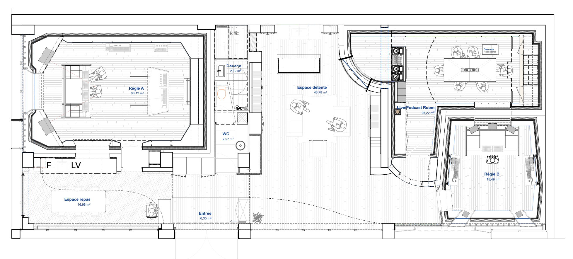
We design bespoke recording studios, and build and fit them out to combine acoustic performance and aesthetic identity. 
Each project is conceived as an instrument in its own right: architecture, acoustics, ergonomics and design combine to create a unique, inspiring and technically flawless environment. 
Our expertise, forged with renowned artists and producers, enables us to transform a creative vision into a workplace perfectly adapted to the demands of modern music production.
MISSION CONTENT
SOUND INSULATION
Compliance with international standard ISO 3382 + EBU / ITU or BBC & AES :
- For control rooms: ≤ 20 dB(A) background noise. 
- For recording booths: often ≤ 25 dB(A) depending on size and type of music. 
In practice, it's extremely quiet, to the point where a slight puff of air or external noise becomes perceptible.
Compliance with current regulations:
- Decree no. 2017-1244 of August 7, 2017 on the prevention of risks related to noise and amplified sounds. 
- Decree, Order and Circular of December 15, 1998 implementing Decree 98-1143 
INTERNAL PROCESSING
- Compliance with EBU 3276 standard with, in addition to temporal criteria, a relatively homogeneous pressure distribution in the room within + or - 3dB from 63Hz to 8kHz at the listening position. 
- Un niveau de réflexions précoces dense et contrôlé (<10dB par rapport au son direct minimum) offrant une sensation d'écoute enveloppante pour la production musicale. 
DELIVERABLES
A complete project including acoustic instructions, photo-realistic images and detailed plans covering all technical aspects of the project (HVAC, fluids, audio, etc.).
CONCEPTION AND DESIGN
We interpret your studio's main idea into a tailor-made design adapted to the acoustic constraints of your space. 
Our advice becomes plans and 3D simulations, which we study and rework together.
CONDITIONS
DURATION OF STUDY
Between 2 and 4 months for the acoustic and design phases.
RATES
This service is generally invoiced in the form of a fee, between 12% and 18% of the cost of the work. 
Depending on the type of project, a pre-study phase is offered from €1,500 excluding VAT, including acoustic measurements, a measurement report, a project sketch and a provisional estimate of the cost of the work.
 
        
        
      
    
    One Two Pass It South
In an exceptional setting overlooking the pine forest and the sea, One Two Pass It commissioned Redhouse to create a unique recording studio offering mixing, production, recording and a creative residency for artists.
The studio, comprising a 25 m2 control room and a 13 m2 recording booth, benefits from isophony and acoustics designed by Redhouse.
 
                         
            
              
            
            
          
              